Villa a schiera in vendita

San Donà Di Piave, Via Francesco Zingales
€ 368.000
4 locali 4 locali
127 Mq 127 Mq
3 bagni 3 bagni

Villa a schiera in vendita

San Donà Di Piave, Via Francesco Zingales

Descrizione annuncio

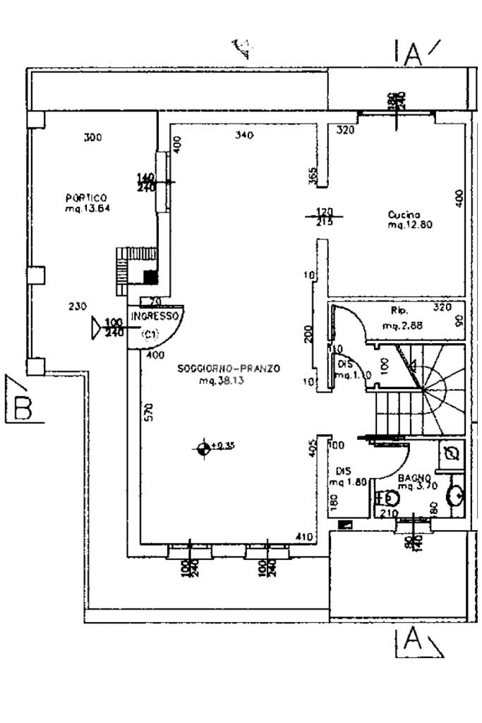
San Donà di Piave, in zona San Pio X, proponiamo porzione di testa di trifamiliare sviluppata su due livelli, caratterizzata da spazi luminosi e ben distribuiti.

Al piano terra si trovano una cucina abitabile separata dal soggiorno e dalla sala da pranzo, un bagno di servizio con pratica zona lavanderia, un comodo ripostiglio ricavato nel sottoscala ed una dispensa.
Il piano superiore è dedicato alla zona notte, composta da tre camere da letto: una matrimoniale, una doppia e una singola. La camera matrimoniale dispone di bagno privato con doccia, mentre un secondo bagno, dotato di vasca idromassaggio, serve il piano.

Completano l’immobile due terrazzi, un giardino a ferro di cavallo, ideale per momenti di relax all’aperto, e un portico perfetto per pranzi e cene estive. È inoltre presente una casetta in legno per il ricovero attrezzi, oltre a comfort quali zanzariere, tende da sole, allarme perimetrale e volumetrico e posto auto coperto.

Soluzione ideale per chi cerca indipendenza, tranquillità e spazi funzionali.

Mostra tutto

Nelle vicinanze

Trasporto pubblico Trasporto pubblico
San Donà di Piave - Jesolo
San Donà di Piave - Jesolo
1,5 Km
San Donà Stazione F.S.
San Donà Stazione F.S.
1,5 Km
Trasporto pubblico
2,0 Km
Ricariche auto elettriche Ricariche auto elettriche
Centro Piave
1,6 Km
Supermercato MEGA | Eneldrive
2,5 Km
Scuole Scuole
Scuole
560 m
Romolo Onor
1,1 Km
Giosuè Carducci
1,4 Km
Gianni Rodari
1,4 Km
Scuola Media Ippolito Nievo
1,6 Km
Farmacia Farmacia
Farmacia Pilla
1,0 Km
Farmacia Comunale
1,5 Km
Farmacia Augustini
1,5 Km
Farmacia
2,2 Km
Ospedali Ospedali
Ospedale di San Donà di Piave
640 m
Ospedali
1,4 Km
Guardia Medica Servizio di Continuità Assistenziale
1,5 Km
Supermercati Supermercati
SuperMercato
760 m
Aldi
910 m
Lidl
1,2 Km
SME
1,4 Km
Ipercoop
1,4 Km
Negozi Negozi
Lidl
960 m
C&A
1,2 Km
Magico Bazar
1,2 Km
Onda Verde
1,2 Km
Takko
1,3 Km
Bar Bar
Bar
1,3 Km
Giemme SNC
1,4 Km
Gelateria
1,6 Km
Revolver
2,0 Km
Bar Centrale
2,3 Km
Ristoranti Ristoranti
L'Angolo del Grop
440 m
Hotel Ristorante Forte del 48
950 m
L'angolo del gusto
1,2 Km
Pizzeria Corallo
1,3 Km
Nonna Giovanna Pizzeria-Ristorante
1,6 Km
Mostra tutto

Caratteristiche

Rif.:
61148561
Piano:
Su più livelli di 2
Totale piani:
2
Posti auto:
1
Terrazzi:
2
Camere da letto:
3
Mostra tutto
Prezzo Prezzo
€ 368.000
Rata mutuo Rata mutuo
€ 1.734 / mese
Spese annue Spese annue
€ 0
Proponi il tuo prezzoProponi il tuo prezzo
Immobile valutato con T·Valuta

Classe Energetica

C
C
C
C
C
C
C
C
C
EP globale non rinnovabile:
72.75 kW h/m² anno
EP globale rinnovabile:
0.67 kW h/m² anno
EP invernale del fabbricato:
EP estiva del fabbricato:
Anno di costruzione:
2003
Riscaldamento:
Autonomo
Tipo impianto:
A pavimento
Tipo alimentazione:
Metano

Ti interessa visionare l'immobile?

Fissa un appuntamento  Fissa un appuntamento

Richiedi informazioni

Clicca su Leggi per aprire l'informativa
* Questi campi sono obbligatori

Calcola il tuo mutuo

Semplice e senza impegno
Anticipo

( % )
Mutuo

( % )

pochi semplici passi

inserisci i tuoi dati
Questionario completato
Grazie per aver richiesto un appuntamento senza impegno con un nostro Consulente del Credito e Assicurativo.

Hai inserito correttamente tutti i dati necessari e a breve riceverai una e-mail con un link da convalidare per inviare i tuoi dati.
Affiliato
Datm Sas
P.zza Alcide De Gasperi, 8 30027 San Donà Di Piave (VE)

Il nostro staff


  • Michael Cincotti
    Affiliato

  • Mattia Biliato
    Affiliato

  • Francesca Dalla Pria
    Coordinatrice

  • Sveva Grieco
    Collaboratrice

  • Siria Geretto
    Collaboratrice
P.zza Alcide De Gasperi, 8 30027 San Donà Di Piave (VE)
Zona: San Donà di Piave
Mostra su mappa
Affiliato
Datm Sas
P.zza Alcide De Gasperi, 8 30027 San Donà Di Piave (VE)

2026 Tecnocasa Franchising S.p.A. - P. IVA 08365160152 - Via Monte Bianco 60/A 20089 Rozzano (MI). Ogni agenzia ha un proprio titolare ed è autonoma. Privacy policy | Policy utilizzo | Cookie policy