Villa a schiera d'angolo in vendita

San Donà Di Piave, Via Brusade
€ 189.000
4 locali 4 locali
120 Mq 120 Mq
2 bagni 2 bagni

Villa a schiera d'angolo in vendita

San Donà Di Piave, Via Brusade

Descrizione annuncio

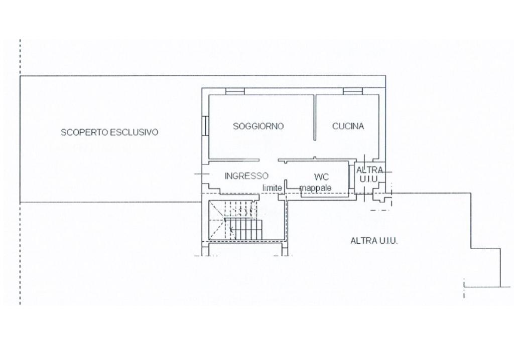
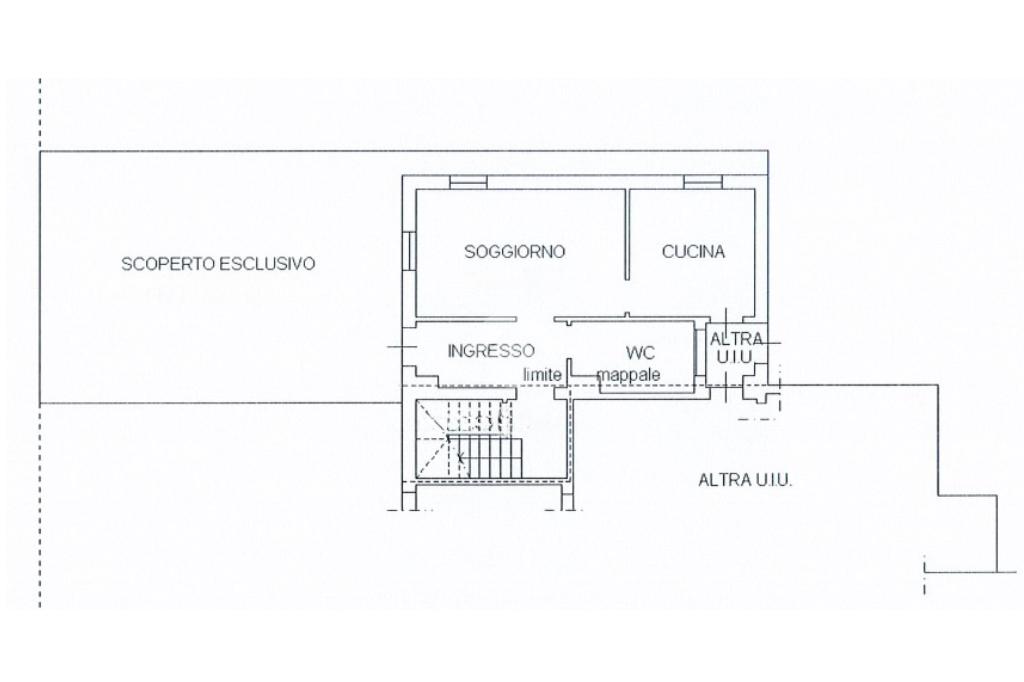
San Donà di Piave, in zona residenziale, proponiamo porzione di testa sviluppata su due livelli.

L’abitazione si compone, al piano terra, di una luminosa zona giorno con cucina e soggiorno separati, un bagno finestrato con doccia e ripostiglio nel sottoscala. Al primo piano si sviluppa la zona notte, composta da tre camere di cui due matrimoniali e una doppia, oltre a un secondo bagno finestrato dotato di vasca.

Completano la proprietà un impianto di climatizzazione, un terrazzo, garage e giardino.

La posizione è comoda ai principali servizi, alle scuole e alle vie di comunicazione.

Mostra tutto

Nelle vicinanze

Trasporto pubblico Trasporto pubblico
San Donà di Piave - Jesolo
San Donà di Piave - Jesolo
990 m
Trasporto pubblico
970 m
San Donà Stazione F.S.
San Donà Stazione F.S.
970 m
Ricariche auto elettriche Ricariche auto elettriche
Supermercato MEGA | Eneldrive
2,2 Km
Centro Piave
2,6 Km
Scuole Scuole
Scuole
110 m
Romolo Onor
110 m
Scuola Media Ippolito Nievo
540 m
Gianni Rodari
980 m
Scuola Elementare
1,2 Km
Farmacia Farmacia
Farmacia Comunale
350 m
Farmacia Augustini
360 m
Farmacia Pilla
500 m
Farmacia
1,8 Km
Ospedali Ospedali
Ospedali
380 m
Ospedale di San Donà di Piave
480 m
Guardia Medica Servizio di Continuità Assistenziale
530 m
Supermercati Supermercati
SuperMercato
630 m
Supermercati
670 m
Aldi
1,0 Km
IN'S Mercato
1,3 Km
SM
1,5 Km
Negozi Negozi
Onda Verde
140 m
Spinazzè Abbigliamento
230 m
Reve
240 m
Il Bagaglio
250 m
Centioli Luigino Snc
260 m
Bar Bar
Bar
170 m
Gelateria
490 m
Giemme SNC
570 m
Bar Centrale
1,2 Km
Bar Biscotto
1,3 Km
Ristoranti Ristoranti
L'angolo del gusto
140 m
Pizzeria Corallo
380 m
Nonna Giovanna Pizzeria-Ristorante
490 m
Ristorante Kristall
640 m
Hotel Ristorante Forte del 48
660 m
Mostra tutto

Caratteristiche

Rif.:
61114800
Piano:
Su più livelli di 2
Totale piani:
2
Box:
1
Posti auto:
1
Terrazzi:
1
Mostra tutto
Prezzo Prezzo
€ 189.000
Rata mutuo Rata mutuo
€ 881 / mese
Spese annue Spese annue
€ 0
Proponi il tuo prezzoProponi il tuo prezzo

Classe Energetica

G
G
G
G
G
G
G
G
G
EP globale non rinnovabile:
254.02 kW h/m² anno
EP globale rinnovabile:
0.70 kW h/m² anno
EP invernale del fabbricato:
EP estiva del fabbricato:
Anno di costruzione:
1945
Riscaldamento:
Autonomo
Tipo impianto:
A radiatori
Tipo alimentazione:
Metano

Ti interessa visionare l'immobile?

Fissa un appuntamento  Fissa un appuntamento

Richiedi informazioni

Clicca su Leggi per aprire l'informativa
* Questi campi sono obbligatori

Calcola il tuo mutuo

Semplice e senza impegno
Anticipo

( % )
Mutuo

( % )

pochi semplici passi

inserisci i tuoi dati
Questionario completato
Grazie per aver richiesto un appuntamento senza impegno con un nostro Consulente del Credito e Assicurativo.

Hai inserito correttamente tutti i dati necessari e a breve riceverai una e-mail con un link da convalidare per inviare i tuoi dati.
Affiliato
Datm Sas
P.zza Alcide De Gasperi, 8 30027 San Donà Di Piave (VE)

Il nostro staff


  • Michael Cincotti
    Affiliato

  • Mattia Biliato
    Affiliato

  • Francesca Dalla Pria
    Coordinatrice

  • Sveva Grieco
    Collaboratrice

  • Siria Geretto
    Collaboratrice
P.zza Alcide De Gasperi, 8 30027 San Donà Di Piave (VE)
Zona: San Donà di Piave
Mostra su mappa
Affiliato
Datm Sas
P.zza Alcide De Gasperi, 8 30027 San Donà Di Piave (VE)

2025 Tecnocasa Franchising S.p.A. - P. IVA 08365160152 - Via Monte Bianco 60/A 20089 Rozzano (MI). Ogni agenzia ha un proprio titolare ed è autonoma. Privacy policy | Policy utilizzo | Cookie policy