Ter. residenziale in vendita

San Donà Di Piave, Via Argine Destro Piave - Passarella
€ 99.000
4 locali 4 locali
104 Mq 104 Mq
3 bagni 3 bagni

Ter. residenziale in vendita

San Donà Di Piave, Via Argine Destro Piave - Passarella

Descrizione annuncio

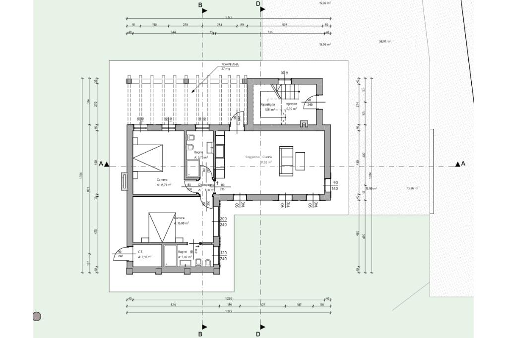
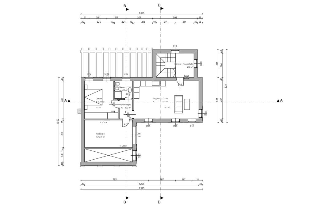
Passarella, a pochi minuti dal centro, proponiamo terreno residenziale con progetto di costruzione già approvato.

Il progetto prevede la costruzione di una villa singola con due appartamenti distinti e saranno così predisposti:

- Piano terra: ingresso situato sotto una comoda pompeiana che darà accesso nella zona giorno con cucina e soggiorno open space, a seguire la zona notte con due camere da letto matrimoniali e due bagni con doccia.

- Primo piano: ingresso tramite scala esterna chiusa nella zona giorno con cucina e soggiorno open space, una camera da letto matrimoniale, un bagno con vasca e un comodo ripostiglio.

La posizione strategica consente di godere della tranquillità della zona, pur rimanendo a breve distanza dai principali servizi e collegamenti.

Questa proprietà rappresenta un'opportunità interessante per chi desidera investire in una casa nuova, in un'area in crescita e ben servita.

Mostra tutto

Nelle vicinanze

Trasporto pubblico Trasporto pubblico
Trasporto pubblico
2,6 Km
Scuole Scuole
Scuole
590 m
Carlo Collodi
600 m
Marco Polo
800 m
Ex Scuola Elementare di Chiesanuova Edoardo Janna
2,7 Km
Ristoranti Ristoranti
Old City
2,6 Km
Da Gigi
2,6 Km
Mostra tutto

Caratteristiche

Rif.:
61002705
Piano:
Su più livelli di 2
Totale piani:
2
Posti auto:
2
Camere da letto:
3
Arredamento:
Assente
Mostra tutto
Prezzo Prezzo
€ 99.000
Rata mutuo Rata mutuo
€ 461 / mese
Spese annue Spese annue
€ 0
Proponi il tuo prezzoProponi il tuo prezzo

Classe Energetica

A4
A4
A4
A4
A4
A4
A4
A4
A4
EP globale non rinnovabile:
0.00 kW h/m² anno
EP globale rinnovabile:
0.00 kW h/m² anno
EP invernale del fabbricato:
EP estiva del fabbricato:
Anno di costruzione:
2025
Riscaldamento:
Autonomo
Tipo impianto:
A pavimento
Tipo alimentazione:
Pannelli

Ti interessa visionare l'immobile?

Fissa un appuntamento  Fissa un appuntamento

Richiedi informazioni

Clicca su Leggi per aprire l'informativa
* Questi campi sono obbligatori

Calcola il tuo mutuo

Semplice e senza impegno
Anticipo

( % )
Mutuo

( % )

pochi semplici passi

inserisci i tuoi dati
Questionario completato
Grazie per aver richiesto un appuntamento senza impegno con un nostro Consulente del Credito e Assicurativo.

Hai inserito correttamente tutti i dati necessari e a breve riceverai una e-mail con un link da convalidare per inviare i tuoi dati.
Affiliato
Datm Sas
P.zza Alcide De Gasperi, 8 30027 San Donà Di Piave (VE)

Il nostro staff


  • Michael Cincotti
    Affiliato

  • Mattia Biliato
    Affiliato

  • Francesca Dalla Pria
    Coordinatrice

  • Sveva Grieco
    Collaboratrice

  • Siria Geretto
    Collaboratrice
P.zza Alcide De Gasperi, 8 30027 San Donà Di Piave (VE)
Zona: San Donà di Piave
Mostra su mappa
Affiliato
Datm Sas
P.zza Alcide De Gasperi, 8 30027 San Donà Di Piave (VE)

2025 Tecnocasa Franchising S.p.A. - P. IVA 08365160152 - Via Monte Bianco 60/A 20089 Rozzano (MI). Ogni agenzia ha un proprio titolare ed è autonoma. Privacy policy | Policy utilizzo | Cookie policy