Villa a schiera in vendita

Musile Di Piave, Via Madonna delle Bonifiche - Mille Pertiche
€ 199.000
3 locali 3 locali
94 Mq 94 Mq
2 bagni 2 bagni

Villa a schiera in vendita

Musile Di Piave, Via Madonna delle Bonifiche - Mille Pertiche

Descrizione annuncio

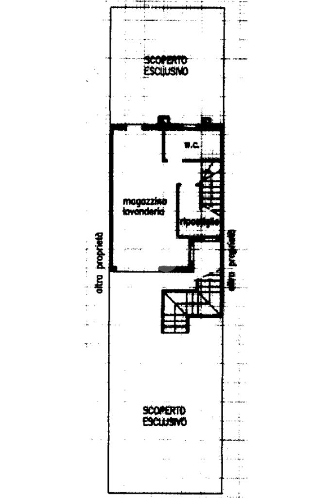
Musile di Piave, in zona Millepertiche, in contesto tranquillo e residenziale, proponiamo schiera centrale disposta su tre livelli, completa di giardino privato fronte e retro.

L’accesso avviene tramite scala esterna che conduce al primo piano, dove si sviluppa la luminosa zona giorno open space, con cucina a vista e salotto, entrambi affacciati su due terrazzi. Al secondo piano si trova la zona notte composta da una camera matrimoniale, una camera singola e un bagno finestrato con vasca. Il piano terra ospita una comoda taverna, completa di lavanderia, secondo bagno con doccia e ripostiglio nel sottoscala.

Completano la proprietà altri due terrazzi, l’impianto di climatizzazione e un posto auto interno.

Mostra tutto

Nelle vicinanze

Scuole Scuole
Scuole
2,7 Km
Mostra tutto

Caratteristiche

Rif.:
61113836
Piano:
Su più livelli di 3
Totale piani:
3
Posti auto:
1
Terrazzi:
4
Camere da letto:
2
Mostra tutto
Prezzo Prezzo
€ 199.000
Rata mutuo Rata mutuo
€ 920 / mese
Spese annue Spese annue
€ 0
Proponi il tuo prezzoProponi il tuo prezzo

Classe Energetica

D
D
D
D
D
D
D
D
D
EP globale non rinnovabile:
76.63 kW h/m² anno
EP globale rinnovabile:
97.81 kW h/m² anno
EP invernale del fabbricato:
EP estiva del fabbricato:
Anno di costruzione:
2001
Riscaldamento:
Autonomo
Tipo impianto:
A radiatori
Tipo alimentazione:
Altro

Ti interessa visionare l'immobile?

Fissa un appuntamento  Fissa un appuntamento

Richiedi informazioni

* Questi campi sono obbligatori

Calcola il tuo mutuo

Semplice e senza impegno
Anticipo

( % )
Mutuo

( % )

pochi semplici passi

inserisci i tuoi dati
Questionario completato
Grazie per aver richiesto un appuntamento senza impegno con un nostro Consulente del Credito e Assicurativo.

Hai inserito correttamente tutti i dati necessari e a breve riceverai una e-mail con un link da convalidare per inviare i tuoi dati.
Affiliato
Datm Sas
P.zza Alcide De Gasperi, 8 30027 San Donà Di Piave (VE)

Il nostro staff


  • Michael Cincotti
    Affiliato

  • Mattia Biliato
    Affiliato

  • Francesca Dalla Pria
    Coordinatrice

  • Sveva Grieco
    Collaboratrice

  • Siria Geretto
    Collaboratrice
P.zza Alcide De Gasperi, 8 30027 San Donà Di Piave (VE)
Zona: San Donà di Piave
Mostra su mappa
Affiliato
Datm Sas
P.zza Alcide De Gasperi, 8 30027 San Donà Di Piave (VE)

2025 Tecnocasa Franchising S.p.A. - P. IVA 08365160152 - Via Monte Bianco 60/A 20089 Rozzano (MI). Ogni agenzia ha un proprio titolare ed è autonoma. Privacy policy | Policy utilizzo | Cookie policy